Overview

  • Gabled house series
  • Property Type
  • 104m2

Description

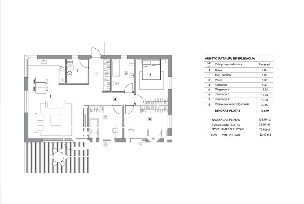
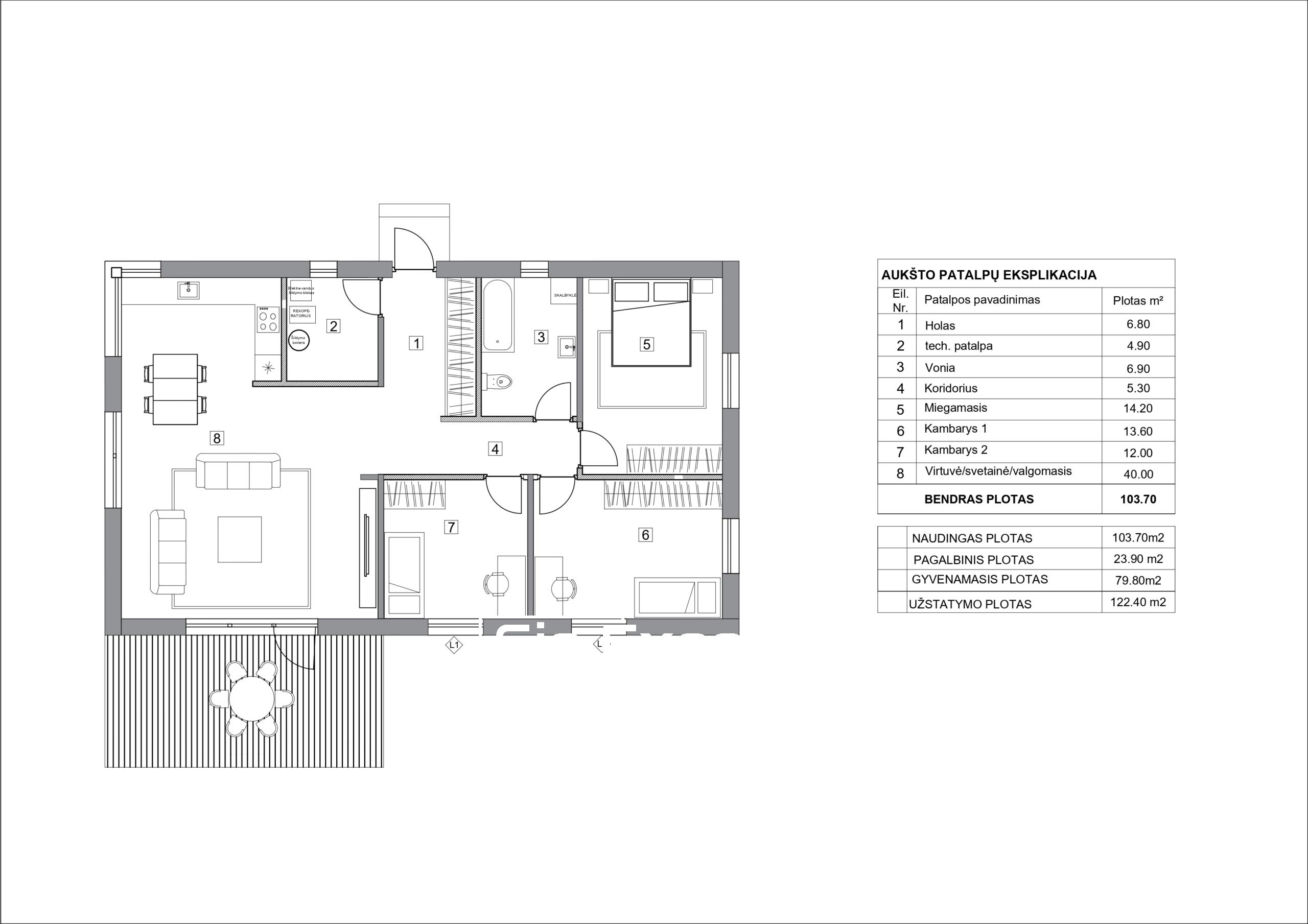
Comfortable living in a spacious 103.70 m² house.

Overview: Discover the embodiment of modern living with Ernesta 104 – a SIP panel house with a flat roof for the modern homeowner. This 103.70 m² house seamlessly combines style, space and functionality.

Modern design: the house features a contemporary, modern flat roof design with a height (highest point) of 3.50 m including the roof covering.

Ernesta 104 is a modern design house adapted to the needs of today’s families.

Room sizes:
Hall – 6.80 m²;
Technical room – 4.90 m²;
Bathroom – 6.90 m²;
Corridor – 5.30 m²;
Bedroom – 14.20 m²;
Room-1 – 13.60 m²;
Room-2 – 12.00 m²;
Kitchen/living room/dining room – 40.00 m²;

SIP panel set price – 16536 Eur excl. VAT

SIP assembly at the site – 7259 Eur excl. VAT

SIP panel set consists of the following elements:
SIP cladding and structural part working project (assembly project);
SIP panels – walls – 124mm, roof – 174mm (SIP panels can be of other thicknesses, according to the Client’s wishes);
SIP panels are precisely cut, milled and prepared for installation.
Structural C24 class wood set;
Fastener set;
Adhesive foam set;

Additional services we provide (not included in the SIP package price):
Window and door installation;
Facade decoration installation;
Roofing installation;
Rain system installation;

Contact Information

View Listings

Enquire About This Property

Compare listings

Compare
Mindaugas Gicevicius
  • Mindaugas Gicevicius