Overview

  • Gabled house series
  • Property Type
  • 66m2

Description

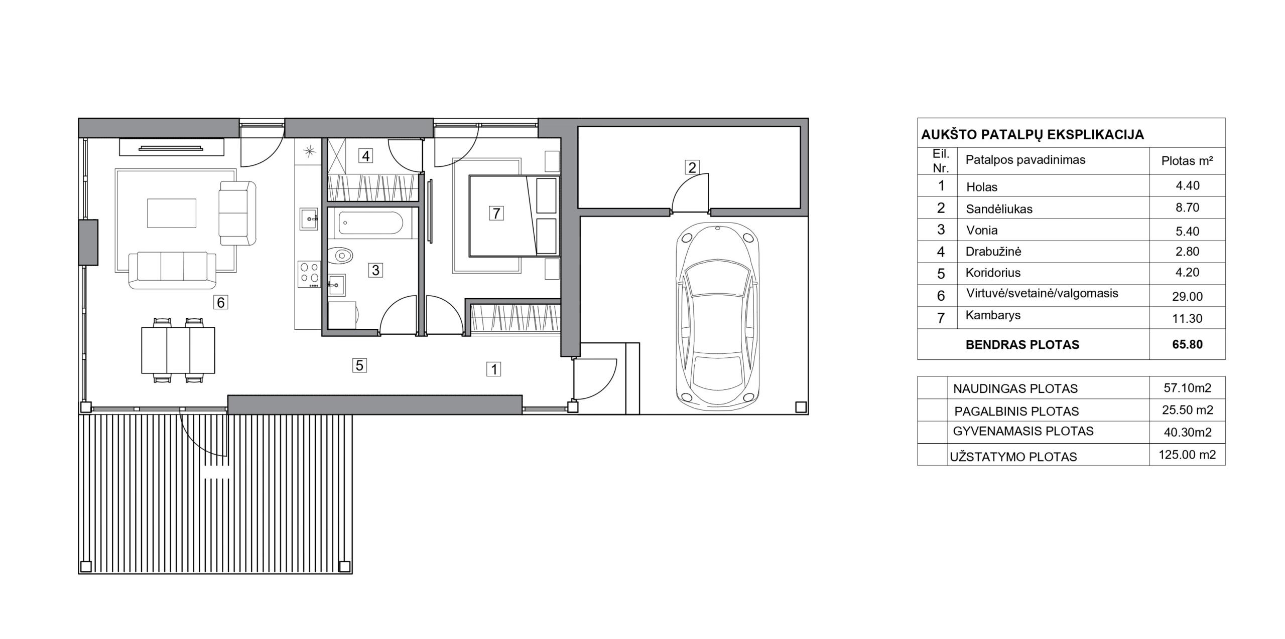
Comfortable living in a spacious 65.80 m² house.

Overview: Discover the embodiment of modern living with Andrius 66 – a SIP panel house with a flat roof for the modern homeowner. This 65.80 m² house seamlessly combines style, space and functionality.

Modern design: The house features a contemporary modern flat roof design with a height (highest point) of 3.50 m including the roof covering.

Andrius 66 is a modern design house adapted to the needs of today’s families.

Room sizes:
Hall – 4.40 m²;
Storage room – 8.70 m²;
Bathroom – 5.40 m²;
Wardrobe – 2.80 m²;
Corridor – 4.20 m²;
Kitchen/living room/dining room – 29.00 m²;
Bedroom – 11.30 m².

SIP panel set price – 10495 Eur excl. VAT

SIP assembly at the site – 4606 Eur excl. VAT

A SIP panel set consists of the following elements:
SIP cladding and structural part working project (assembly project);
SIP panels – walls – 124mm, roof – 174mm (SIP panels can be of other thicknesses, according to the Client’s wishes);
SIP panels are precisely cut, milled and prepared for installation.
Structural C24 class timber set;
Fastener set;
Adhesive foam set;

Additional services we provide (not included in the SIP set price):
Installation of windows and doors;
Installation of facade decoration;

Installation of roofing;

Rain system installation

Contact Information

View Listings

Enquire About This Property

Compare listings

Compare
Mindaugas Gicevicius
  • Mindaugas Gicevicius