Overview

  • Gabled house series
  • Property Type
  • 81m2

Description

Comfortable living in a spacious 80.89 m² house.

Overview: Discover the embodiment of modern living with Livin81 – a SIP panel house with a gable roof for the modern homeowner. This 80.89 m² house seamlessly combines style, space and functionality.

Modern design: the house features a contemporary modern flat roof design with a height (highest point) with roof covering of 3.60 m.
Livin81 is a modern design house adapted to the needs of today’s families.

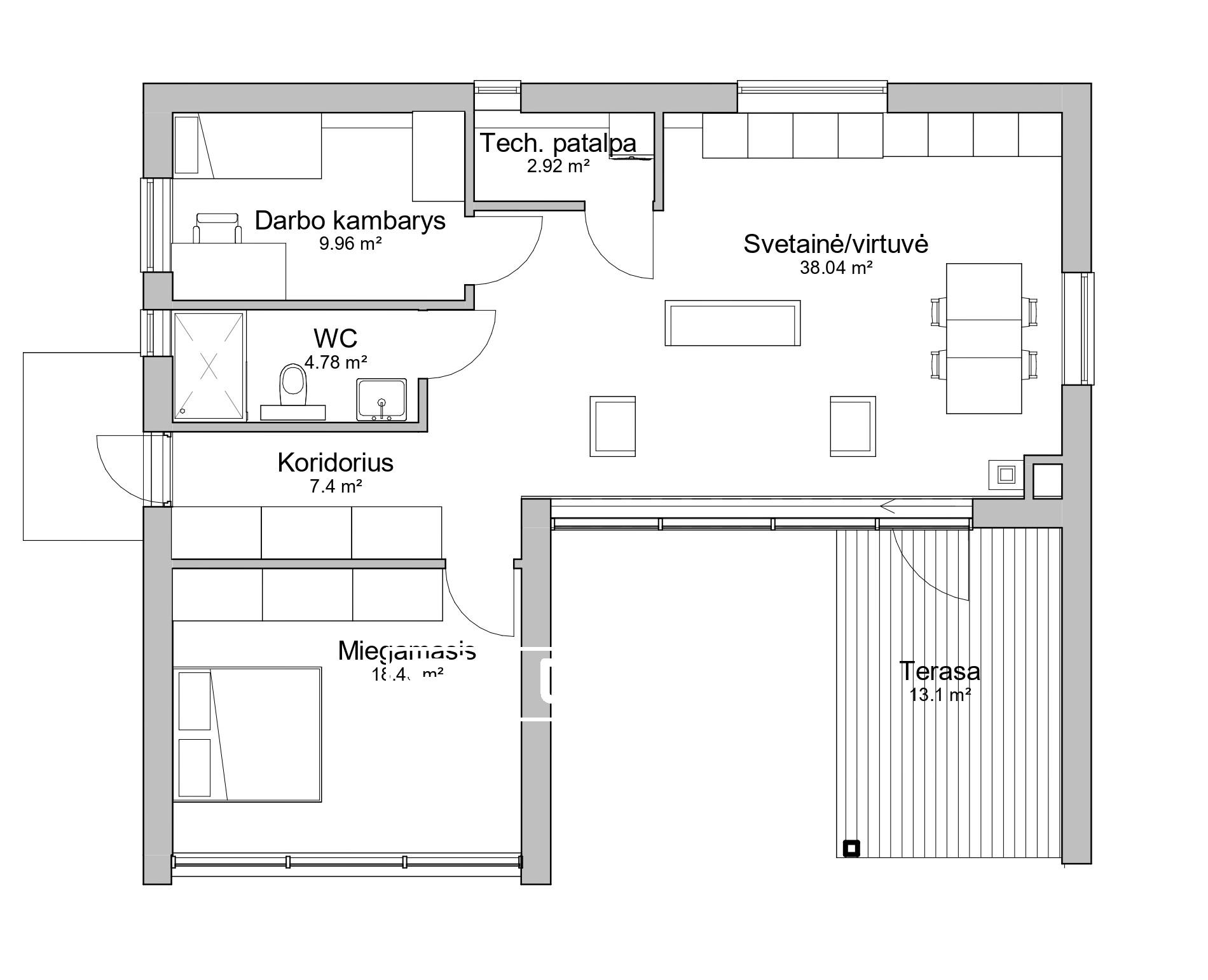
Room sizes:
Corridor – 7.32 m²;
Bedroom – 18.18 m²;
Study – 9.75 m²;
Tech. room – 2.84 m²;
Bathroom/WC – 4.73 m²;
Living room/kitchen – 37.75 m².

SIP panel set price – 12879 Eur exc. VAT (due to rapidly changing material prices on the market, please inquire about the price of SIP panel KIT)

SIP assembly at the site – 5663 Eur exc. VAT

SIP panel set consists of the following elements:
SIP cladding and structural part working project (assembly project);
SIP panels – walls – 124mm, roof – 174mm (SIP panels can be of other thicknesses, according to the Client’s wishes);
SIP panels are precisely cut, milled and prepared for installation.
Structural C24 class timber set;
Fastener set;
Adhesive foam set;

Additional services we provide (not included in the SIP set price):
Foundation installation;
Installation of windows and doors;
Installation of facade decoration;

Installation of roofing; 

Installation of rain system;

Contact Information

View Listings

Enquire About This Property

Compare listings

Compare
Mindaugas Gicevicius
  • Mindaugas Gicevicius