Overview

  • Gabled house series
  • Property Type
  • 127m2

Description

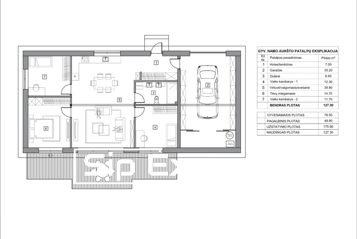
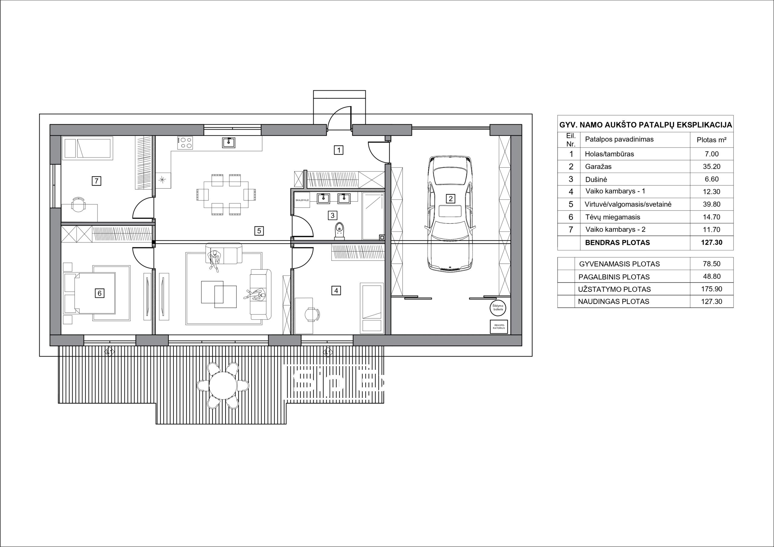
Comfortable living in a spacious 127,3 m² house.

Overview: Discover the embodiment of modern living with the  Modus 127 – a SIP panel house with a gable roof for the modern homeowner. This 127,3 m² house seamlessly combines style, space and functionality.

Modern design: the house features a modern, fashionable gable roof design with a height (highest ridge point) including the roof covering of 4.53 m.
Modus 127 is a modern design house adapted to the needs of today’s families.

Room sizes:
Bedroom – 14.83 m²;
Bathroom/WC – 6.56 m²;
Bedroom – 14.81 m²;
Living room/kitchen – 34.46 m²;
Technical room – 4.91 m²;
Corridor – 2.22 m²

SIP panel set price – 20195 Eur exc. VAT (due to rapidly changing material prices on the market, please inquire about the price of SIP panel KIT)

SIP assembly at the site – 8911 Eur exc. VAT

SIP panel set consists of the following elements:

SIP cladding and structural part working project (assembly project);
SIP panels – walls – 124mm, roof – 174mm (SIP panels can be of other thicknesses, according to the Client’s wishes);
SIP panels are precisely cut, milled and prepared for installation.
Structural C24 class timber set;
Fastener set;
Adhesive foam set;

Additional services we provide (not included in the SIP set price):
Installation of windows and doors;
Installation of facade decoration;
Installation of roofing;
Installation of rain system;

Contact Information

View Listings

Enquire About This Property

Compare listings

Compare
Mindaugas Gicevicius
  • Mindaugas Gicevicius