Overview

  • Gabled house series
  • Property Type
  • 84m2

Description

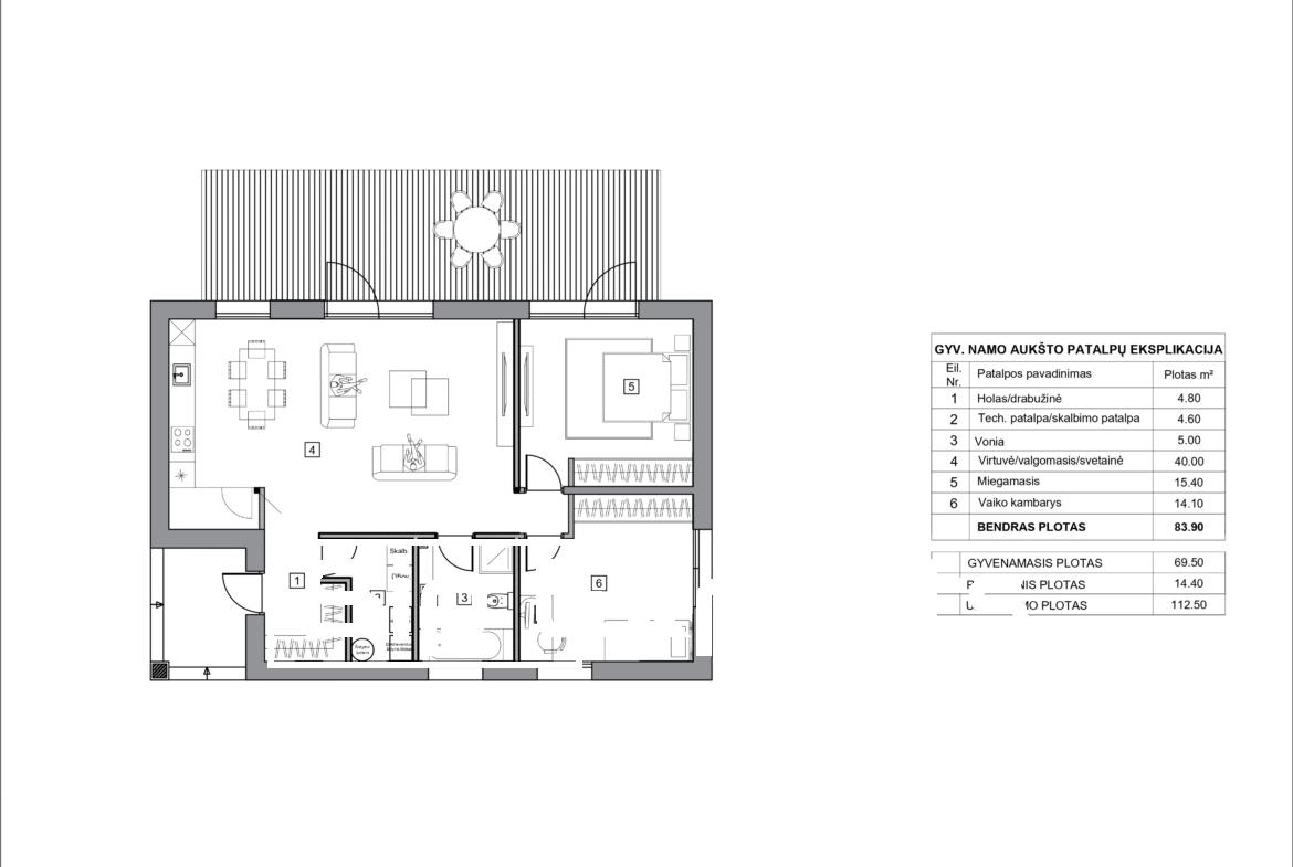
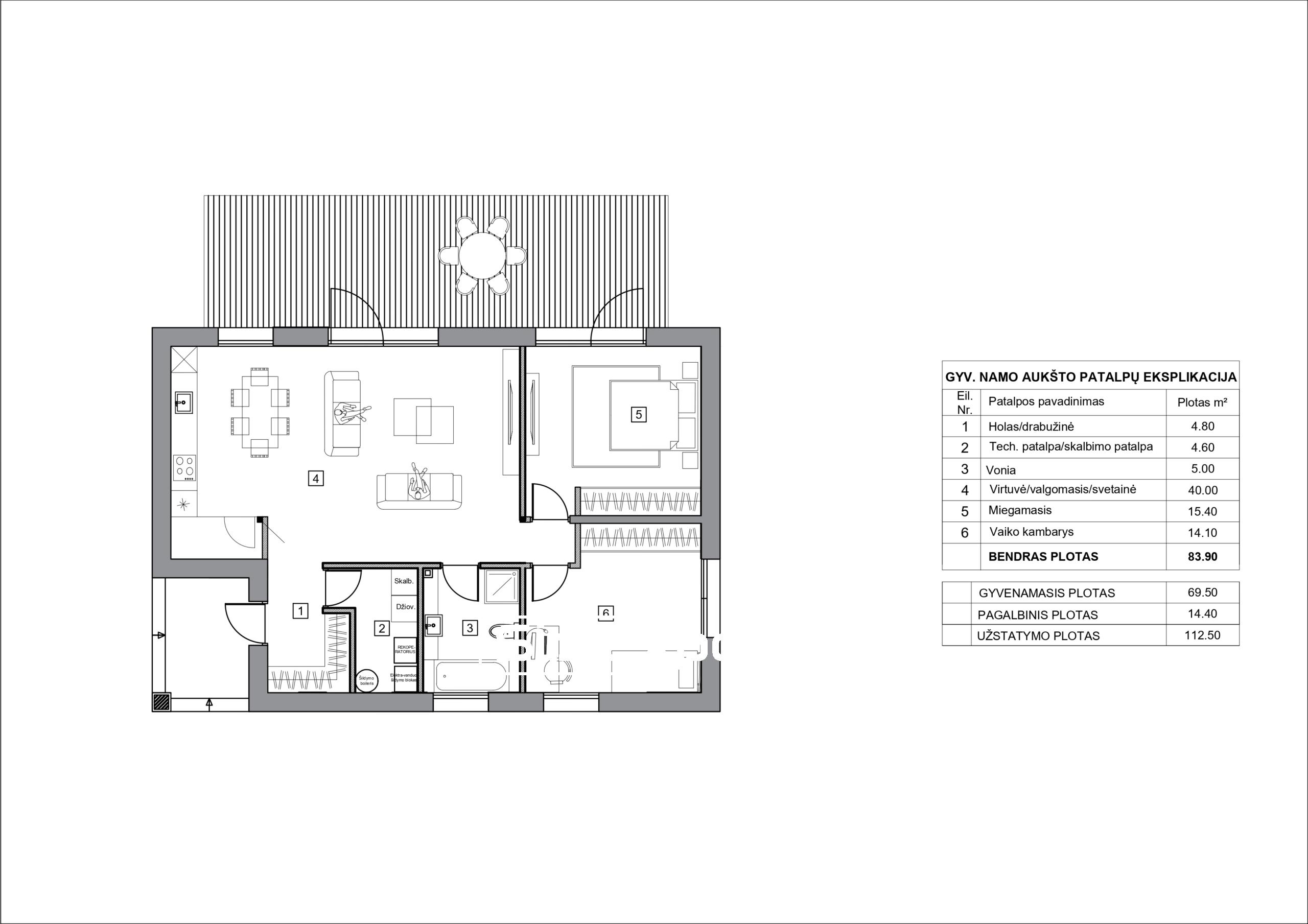
Comfortable living in a spacious 83.9 m² house.

Overview: Discover the embodiment of modern living with the monoslope 83.9 m² – a SIP panel house with a monoslope roof for the modern homeowner. This 83.9 m² house seamlessly combines style, space and functionality.

Modern design: the house features a modern, fashionable monoslope roof design with a height (highest ridge point) with roof covering of 4.02 m.
The monoslope 83.9 m² is a modern design house adapted to the needs of today’s families.

Room sizes:
Hall. closet – 4.80 m²;
Tech. room/laundry room – 4.60 m²;
Bathroom/WC – 5.00 m²;
Kitchen/dining room/living room – 40 m²;
Bedroom – 15 m²;
Children’s room – 14.1 m².

SIP panel set price – 13556 Eur exc. VAT (due to rapidly changing material prices on the market, please inquire about the price of SIP panel KIT)

SIP assembly on site – 5873 Eur exc. VAT

A SIP panel set consists of the following elements:
SIP cladding and structural part working project (assembly project);
SIP panels – walls – 124mm, roof – 174mm (SIP panels can be of other thicknesses, according to the Client’s wishes);
SIP panels are precisely cut, milled and prepared for installation.
Structural C24 class timber set;
Fastener set;
Adhesive foam set;

Additional services we provide (not included in the SIP set price):
Foundation installation;
Installation of windows and doors;
Installation of facade decoration;
Installation of roofing;
Installation of rain system;

Contact Information

View Listings

Enquire About This Property

Compare listings

Compare
Mindaugas Gicevicius
  • Mindaugas Gicevicius