Overview

  • Gabled house series
  • Property Type
  • 113m2

Description

Comfortable living in a spacious 113 m² house.

Overview: Discover the embodiment of modern living with Gable 113 – a SIP panel house with a gable roof for the modern homeowner. This 113 m² house seamlessly combines style, space and functionality.

Modern design: the house features a modern, fashionable gable roof design with a height (highest ridge point) including the roof covering of 3.87 m.
Gable 113 is a modern design house adapted to the needs of today’s families.

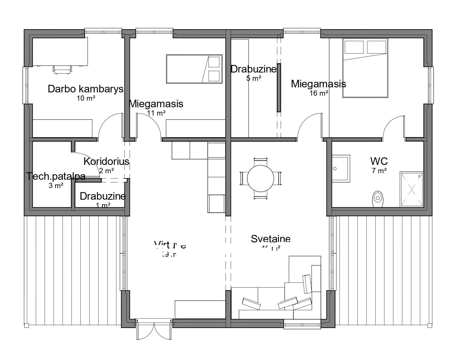
Room sizes:
Kitchen – 19.00 m²;
Living room – 19.00 m²;
Wardrobe – 1.00 m²;
Tech. room – 3.00 m²;
Corridor – 2.00 m²;
Workroom – 10.00 m²;
Bedroom – 11.00 m²;
Bedroom – 16.00 m²;
WC – 7.00 m²;
Terrace – 12.00 m²;

Price of SIP panel set – 17967 Eur excl. VAT (due to rapidly changing material prices on the market, please inquire about the price of SIP panel KIT)

SIP assembly at the site – 7910 Eur excl. VAT

A SIP panel set consists of the following elements:
SIP cladding and structural part working project (assembly project);
SIP panels – walls – 124mm, roof – 174mm (SIP panels can be of other thicknesses, according to the Client’s wishes);
SIP panels are precisely cut, milled and prepared for installation.
Structural C24 class timber set;
Fastener set;
Adhesive foam set;

Additional services we provide (not included in the SIP set price):
Installation of windows and doors;
Installation of facade decoration;
Installation of roofing;
Rain system installation;

Contact Information

View Listings

Enquire About This Property

Compare listings

Compare
Mindaugas Gicevicius
  • Mindaugas Gicevicius