Overview

  • Gabled house series
  • Property Type
  • 121m2

Description

Comfortable living in a spacious 120.60 m² house.

Overview: Discover the embodiment of modern living with Gable 121 – a SIP panel house with a gable roof for the modern homeowner. This 120.60 m² house seamlessly combines style, space and functionality.

Modern design: the house features a modern, fashionable gable roof design with a height (highest ridge point) including the roof covering of 5.10 m.
Gable 121 is a modern design house adapted to the needs of today’s families.

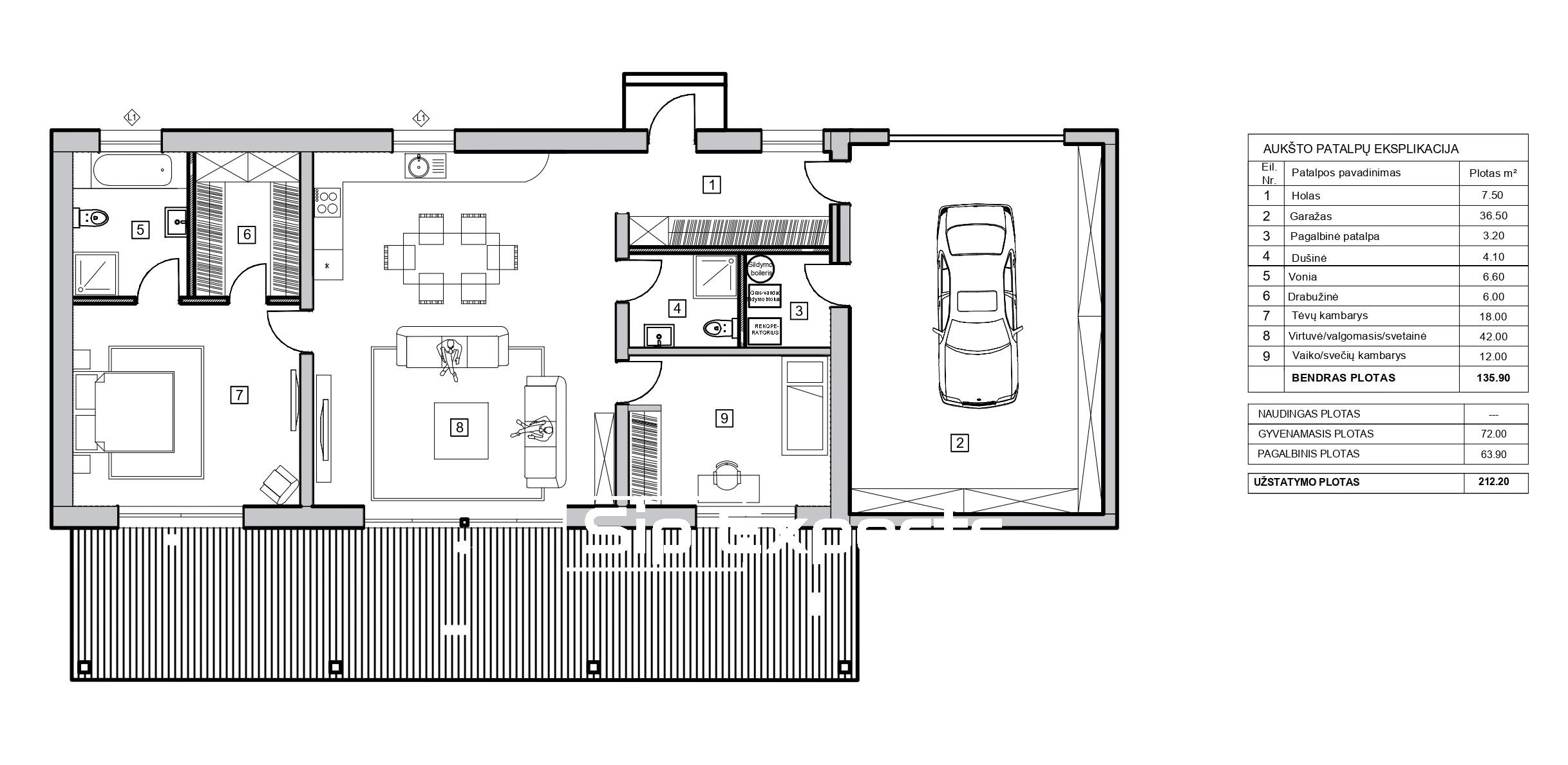
Room sizes:
Vestibule – 4.60 m²;
Tech. room – 9.70 m²;
Utility room – 4.70 m²;
WC – 2.10 m²;
Bathroom – 7.90 m²;
Wardrobe – 5.00 m²;
Parents’ room – 14.30 m²;
Kitchen/dining room/living room – 42.00 m²;
Children’s room-1 – 12.00 m²;
Children’s room-2 – 12.00 m²;
Hall – 6.30 m²;

SIP panel set price – 19239 Eur excl. VAT

SIP assembly at the site – 8442 Eur excl. VAT

A SIP panel set consists of the following elements:
SIP cladding and structural part working project (assembly project);
SIP panels – walls – 124mm, roof – 174mm (SIP panels can be of other thicknesses, according to the Client’s wishes);
SIP panels are precisely cut, milled and prepared for installation.
Structural C24 class wood set;
Fastener set;
Adhesive foam set;

Additional services we provide (not included in the SIP set price):
Installation of windows and doors;
Installation of facade decoration;
Installation of roofing;
Rain system installation;

Contact Information

View Listings

Enquire About This Property

Compare listings

Compare
Mindaugas Gicevicius
  • Mindaugas Gicevicius