Overview

  • Gabled house series
  • Property Type
  • 90m2

Description

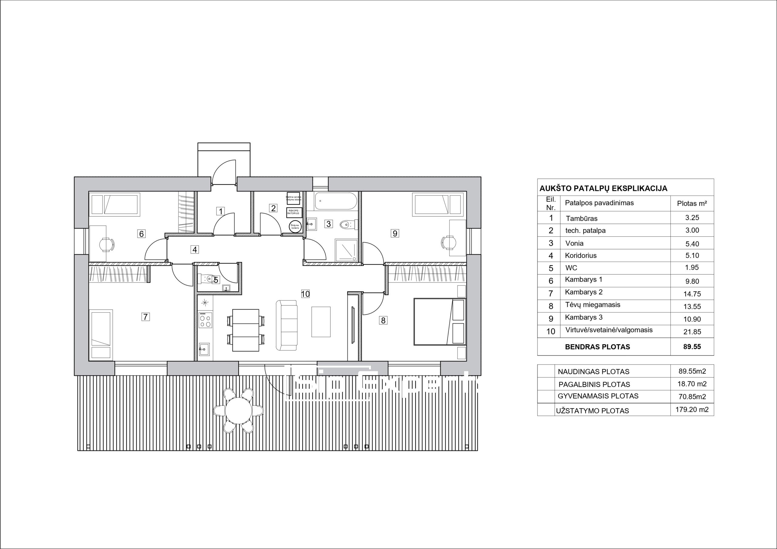
Comfortable living in a spacious 89.55 m² house.

Overview: Discover the embodiment of modern living with the Gable 90 – a SIP panel house with a gable roof for the modern homeowner. This 89.55 m² house seamlessly combines style, space and functionality.

Modern design: the house features a modern, fashionable gable roof design with a height (highest ridge point) including the roof covering of 4.42 m.
The Gable 90 is a modern design house adapted to the needs of today’s families.

Room sizes:
Vestibule – 3.25 m²;
Tech. room – 3.00 m²;
Bathroom – 5.40 m²;
Corridor – 5.10 m²;
WC – 1.95 m²;
Room-1 – 9.80 m²;
Room-2 – 14.75 m²;
Parent’s bedroom – 13.55 m²;
Room-3 – 10.90 m²;
Kitchen/living room/dining room – 21.85 m².

SIP panel set price – 14310 Eur excl. VAT (due to rapidly changing material prices on the market, please inquire about the price of SIP panel KIT)

SIP assembly at the facility – 6269 Eur excl. VAT

SIP panel set consists of the following elements:
SIP cladding and structural part working project (assembly project);
SIP panels – walls – 124mm, roof – 174mm (SIP panels can be of other thicknesses, according to the Client’s wishes);
SIP panels are precisely cut, milled and prepared for installation.
Structural C24 class wood set;
Fastener set;
Adhesive foam kit;

Additional services we provide (not included in the SIP kit price):
Installation of windows and doors;
Installation of facade decoration;
Installation of roofing;
Rain system installation;

Contact Information

View Listings

Enquire About This Property

Compare listings

Compare
Mindaugas Gicevicius
  • Mindaugas Gicevicius