Overview

  • Gabled house series
  • Property Type
  • 94m2

Description

Overview

Discover the essence of modern living with the Gable Roof 94 m² – a SIP panel house designed for today’s homeowner. This 94 m² residence seamlessly combines style, space, and functionality.

Modern Design

The house features a contemporary double-pitched roof design, with the highest ridge point reaching 4.95 m (including roof covering).
The Gable Roof 94 m² is a modern home, perfectly tailored to meet the needs of today’s families.

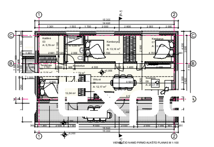
Room Layout & Sizes

  • Entrance hall / corridor – 5.08 m²
  • Corridor – 2.72 m²
  • Boiler room – 5.79 m²
  • Bathroom + WC – 5.56 m²
  • Bedroom – 12.04 m²
  • Bedroom – 13.16 m²
  • Bedroom – 13.16 m²
  • Kitchen – 12.17 m²
  • Living room – 24.07 m²

Pricing

  • SIP panel kit (A++ energy class): 14,946 Eur excl. VAT
  • On-site assembly of SIP panels: 7,930 Eur excl. VAT

What’s Included in the SIP Kit

  • Detailed working drawings for panel layout and construction (assembly project)
  • SIP panels: walls – 124 mm, roof – 174 mm (custom thickness available upon request)
  • SIP panels precisely cut, milled, and ready for installation
  • Structural timber set (C24 class)
  • Fastening set
  • Adhesive foam set

Additional Services (not included in SIP kit price)

  • Foundation installation
  • Window and door installation
  • Facade cladding installation
  • Roofing installation
  • Rainwater system, external sills, and sheet metal works
  • Interior finishing works

Video

Contact Information

View Listings

Enquire About This Property

Compare listings

Compare
Mindaugas Gicevicius
  • Mindaugas Gicevicius